品牌名稱:AOHUA
帶 寬:B=800-B=2400mm
工 藝:高頻壓制成型
焊接方式:焊接機器人
涂裝工藝:靜電粉末噴涂、油漆、熱鍍鋅
應用領域:煤礦、水泥、破碎、電廠、鋼廠、冶金、采石、 印刷、回收工業等輸送設備
產品簡介
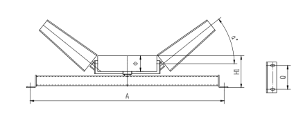
雙中輥調偏托輥組結構緊密,四輥形成一個封閉的圍包角,兩側采用熱硫化鑄膠或聚氨酯包覆的錐形輥,更加耐磨損受力靈敏,可微調側輥高度,使其能根據受力點的受力大小轉化調偏旋轉力度。(專利號:201620786360.3 20202060821.X)
詳情描述
雙中輥調偏托輥組回轉軸焊在下橫梁上,回轉總成(包括組合軸承、回轉軸套)安裝在下橫梁上方,回轉總成外圍設計了可擺動的中托輥橫梁,以回轉軸為中心,在運行膠帶前、后中托輥橫梁上各設置一個中托輥,形成以回轉軸為中心的平衡支撐。側托輥采用加大軸承和軸徑設計,用側托輥軸代替常規的側托輥橫梁功能。側托輥可拆卸的安裝在兩中輥中間。側托輥為錐形輥設計,錐形輥采用鑄橡膠結構,其在膠帶跑偏時能產生較大的回向阻尼效果,從而使膠帶居中平穩運行。
產品標準
我們的產品遵守嚴格的國家標準,確保操作的可靠性、耐用性和安全性。我們遵守 CEMA、ISO、DIN、JIS、DTII等行業法規,以保證我們產品的最高質量和性能。



手機:13483852999
電話:0317-5128131/5128282
郵箱:sales@hebeiaohua.com
公司地址:河北滄州市鹽山縣東外環10號